For sale
79.000€
Mangia is a small rural village whose origins date back to the times of the struggles between the Guelphs and Ghibellines, and which still retains the flavor of ancient times.
Here, in the heart of the village, in a sunny location, for sale an exclusive townhouse with a private entrance.
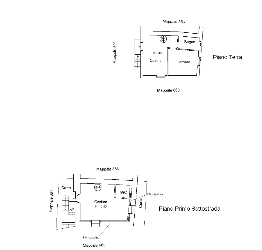
It is arranged on two levels, each measuring 35 square meters.
The ground floor is presented as a single room, with connections for heating and a bathroom.
There is already an opening in the ceiling for a future staircase to connect the two floors.
The first floor is currently the living area and has been recently renovated: it comprises an entrance hall, a living room with an open kitchen, a bathroom with shower, and a double bedroom.
It is fully furnished.
PVC thermally insulated double glazed windows, indepdnente heating, the roof is ventilated and in good condition, and the systems are up to code and certified.